Это объявление не активно или истек срок публикации
52 000 $
Квартира в ЖК 57 Перлина
- 28/06/2025 13:00
- Украина, Одесса и область
- Продам квартиру
- Продам, предлагаю - частное лицо
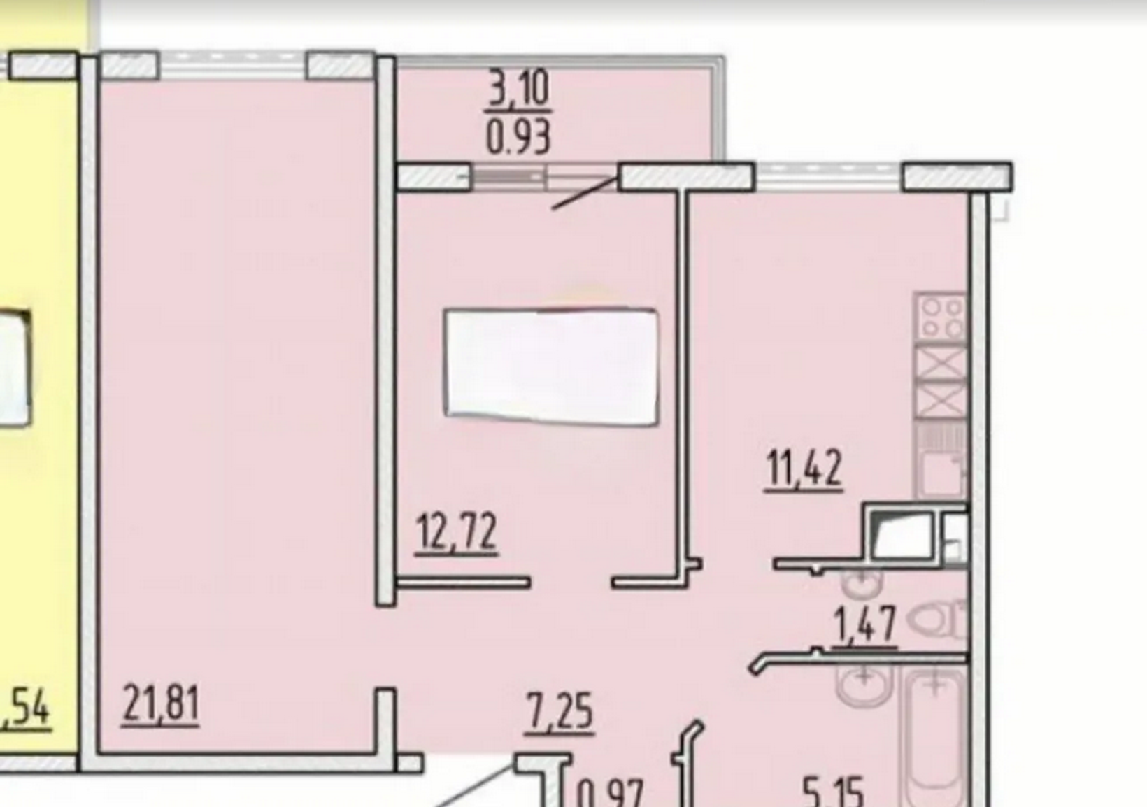
Пропоную до продажу 2кімнатну квартиру, 57 Перлина, 17 поверх в будинку 18 поверхів, загальна 62 кВ.м. , балкон, кутовий вид моря, Від будівельників, планування як на фото, внизу є паркінг надземний, підземний, торговий центр, школи, садки, море, парк 411 батарея
ID: 1193625
Создано: 28/06/2025















