180 $
Купити зруб під ключ від виробника — «Закарпат Зруб-Буд», якість з Карпат
- 02/07/2025 12:23
- Украина, Одесса и область
- Лес, пиломатериалы
- Продам, предлагаю - частное лицо
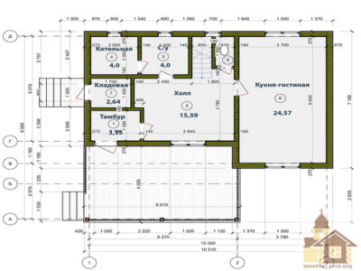
Шукаєте надійний дерев’яний зруб? «Закарпат Зруб-Буд» пропонує будівництво зрубів під ключ з екологічної смереки. Власне виробництво, контроль якості, сучасне проектування та доставка по всій Україні та Європі. Будинки, дачі, готелі, лазні — з урахуванням ваших потреб. Гарантія, документація, прозора ціна. Замовляйте надійний дерев’яний дім уже зараз!
ID: 1193170
Создано: 13/06/2025















