180 $
Дерев’яні храми під ключ від Закарпат Зруб-Буд
- 14/01/2026 06:49
- Украина, Одесса и область
- Лес, пиломатериалы
- Продам, предлагаю - частное лицо
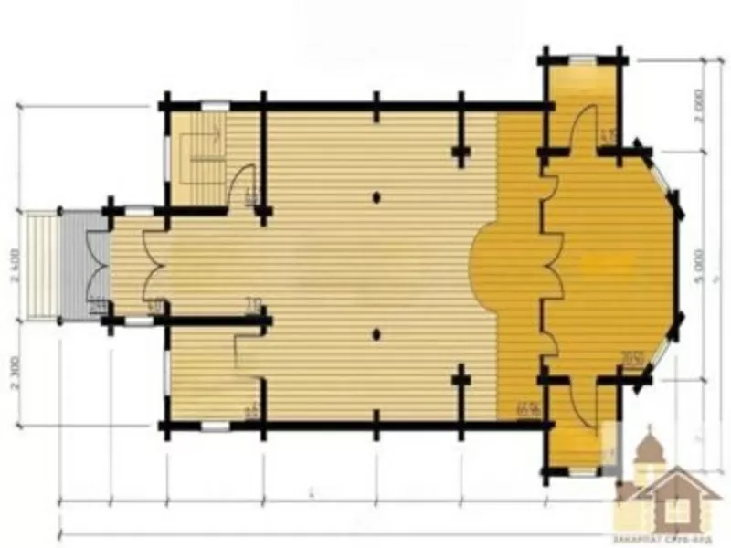
Дерев'яні храми під ключ від Закарпат Зруб-Буд об'єднують традиційну зрубну архітектуру та сучасний дизайн. Проекти дерев’яних храмів, будівництво церкви з дерева та дерев’яний храм ЗСБ-138 м² з оциліндрованого бруса з золотими куполами. Замовляйте проекти, дізнайтеся ціну та створюйте свій унікальний дерев’яний храм, що надихає та зберігає традиції.
ID: 1197773
Создано: 23/11/2025




















