4 800 000 грн.
Продам офис на ул. Фонтанская дорога
- 30/10/2013 10:40
- Украина, Одесса и область
- Коммерческая недвижимость, гаражи, стоянки
- Предложения фирм
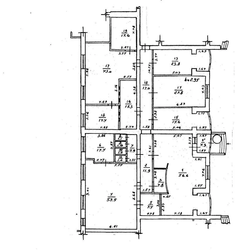
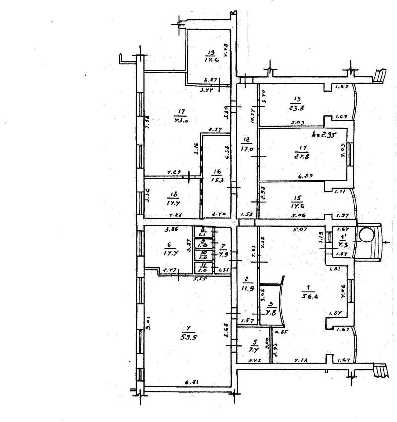
Продам офис на ул. Фонтанская дорога. Общая площадь 338 кв.м. Офисное помещение с современным ремонтом, 11 помещений. 3 кабинета по 20 кв.м, холл 40 кв.м, с/узел. Интернет, телефон, видео наблюдение. Четыре фасадных окна. Цена 4800000 грн. Тел.: +38(048) 700-72-12, +38(067) 333-70-54, +38(093) 850-25-20 Юрий.
ID: 281387
Создано: 12/03/2013
Юрий
Покупайте безопасно
Новые объявления продавца
-
Продам офис на ул. Фонтанская дорога
4 800 000 грн. -
Продам помещение под офис на ул. Фонтанская дорога
803 600 грн.









