180 $
Купити зруб котеджу з рубаною стіною під ключ
- 20/09/2025 06:46
- Украина, Одесса и область
- Ремонтно-строительные услуги
- Продам, предлагаю - частное лицо
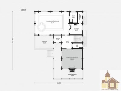
Купити зруб котеджу з рубаною стіною легко з Закарпат Зруб-Буд! Ми пропонуємо енергоефективні дерев’яні будинки зі смерекової деревини, з продуманим плануванням, комфортними розмірами та натуральним оздобленням. Рубані стіни та стильний дизайн створюють затишок та екологічну атмосферу для вашої родини. Замовляйте будинок під ключ та насолоджуйтеся комфортом вже сьогодні!
ID: 1196011
Создано: 19/09/2025




















