180 $
Дерев’яні зруби купити у 2025
- 14/01/2026 06:48
- Украина, Одесса и область
- Ремонтно-строительные услуги
- Продам, предлагаю - частное лицо
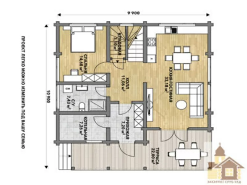
Будинок з брусу під ключ в Україні від Закарпат Зруб-Буд — це поєднання надійності, комфорту та екологічності. Наші зруби виготовлені з натурального дерева з точними характеристиками зрубу та готовими проєктами з дерева. Купити зруб можна з доставкою та професійним монтажем, що забезпечує тепло, затишок і довговічність вашого будинку. Обирайте Закарпат Зруб-Буд та створюйте дерев’яний будинок своєї мрії вже сьогодні.
ID: 1197093
Создано: 27/10/2025
















